LOFT SETÚBAL
2022 Setúbal, Portugal
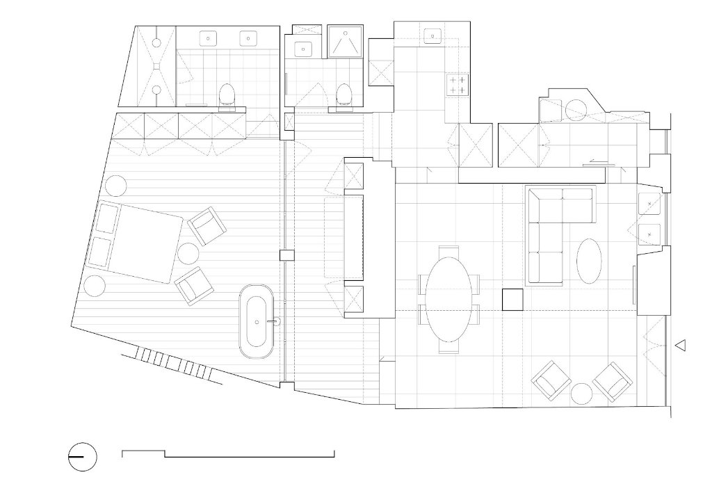
Converting a former warehouse into a luxury loft
2022 Setúbal, Portugal
Converting a former warehouse into a luxury loft